CẢNH BÁO ĐỎ: Những “Tử Huyệt” Trong Thiết Kế, Thi Công Onsen & Jjimjilbang Khiến Chủ Đầu Tư “Đốt Tiền”
Phân Tích Rủi Ro & Giải Pháp Chuyên Sâu Từ Kovitech
Mục lục:
- Lời nói đầu: Khi giấc mơ nghỉ dưỡng biến thành ác mộng vận hành.
- Những sai lầm khi thiết kế, thi công Onsen & Jjimjilbang
- Sai lầm 1: Tử huyệt Mặt bằng – Tải trọng, cao độ và nguồn cấp.
-
Sai lầm 2: Tử huyệt Công nghệ – Onsen không phải là hồ bơi.
-
Sai lầm 3: Thảm họa Giao thông – Sự cố tế nhị và lúng túng.
-
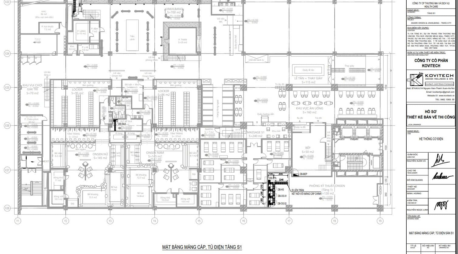
Sai lầm 4: Ác mộng Hệ thống MEP – Trái tim yếu ớt trong cơ thể khổng lồ.
-
Sai lầm 5: Vật liệu sai mục đích – Sự ăn mòn của nhiệt và muối.
- Sai lầm 6: Lỗ hổng cách nhiệt phòng xông – thảm hoạ năng lượng
-
Sai lầm 7: Bỏ quên Hậu cần (Back of House) – Nỗi khổ của vận hành.
- Sai lầm 8: Vướng mắc Pháp lý PCCC – Án tử của Giấy phép
- Sai lầm 9: Thiếu Tầm nhìn Tổng thể – Đổ vỡ Tài chính
3. Giải pháp toàn diện: Kovitech – Người Kiến Tạo & Bảo Vệ Dự Án Của Bạn.
4. Lời kết và bài học chủ đầu tư cần biết.

1. Lời nói đầu: Khi giấc mơ nghỉ dưỡng biến thành ác mộng vận hành
Mô hình Onsen & Jjimjilbang đang bùng nổ, hứa hẹn lợi nhuận cao nhưng cũng ẩn chứa rủi ro đầu tư khổng lồ. Đây là mô hình kinh doanh siêu phức tạp về kỹ thuật, nơi mà một sai sót nhỏ trong thiết kế ban đầu có thể dẫn đến chi phí vận hành khổng lồ hoặc phải đập đi làm lại sau vài tháng hoạt động.
Bài viết này không chỉ là những lời cảnh báo, mà còn là lời khuyên thực chiến từ chuyên gia để Chủ đầu tư (CĐT) nhận diện những sai lầm “chết người” và tìm ra hướng đi đúng đắn nhất. Khác với Spa thông thường, sai lầm trong kiến trúc Onsen & Jjimjilbang thường không thể sửa chữa hoặc phải đập đi làm lại với chi phí hàng chục tỷ đồng. Bài viết này không nói những lời hoa mỹ, đây là những gáo nước lạnh thực tế để bạn tỉnh táo trước khi xuống tiền. Tham khảo thiết kế dự án Onsen & Jjimjilbang tại đây
2. Những sai lầm khi thiết kế, thi công Onsen & Jjimjilbang chủ đầu tư cần biết.
a. Sai lầm 1: Tử huyệt Mặt bằng – Khi kết cấu hạ tầng không chịu nổi “nhiệt”
Nhiều CĐT bị cuốn hút bởi vị trí đắc địa mà quên kiểm tra khả năng chịu đựng của mặt bằng.
-
Tải trọng sàn (Loading Capacity): Một bể Onsen chứa hàng tấn nước. Thiếu gia cố kết cấu sàn sẽ gây nứt trần, lún sàn.
-
Cao độ trần: Hệ thống thông gió, cấp khí tươi cần không gian khổng lồ trên trần. Trần thấp sẽ khiến không gian xông hơi bí bách, ngột ngạt và ảnh hưởng nghiêm trọng đến sức khỏe khách hàng.
-
Nguồn cấp điện/nước: Việc đun nóng nước Onsen và vận hành hàng chục phòng xông hơi cần nguồn điện 3 pha công suất cực lớn. Nhiều dự án thất bại vì trạm biến áp không đủ tải.
b. Sai lầm 2: Tử huyệt Công nghệ – Onsen không phải là hồ bơi
Sai lầm phổ biến là thuê đơn vị làm hồ bơi thông thường thi công Onsen.
-
Xử lý nước: Hồ bơi dùng Clo, Onsen phải dùng công nghệ khử khuẩn bằng Ozone/UV và hệ thống Ion hóa, châm khoáng để đảm bảo chất lượng nước trị liệu và tránh mùi Clo nồng nặc.
-
Giữ nhiệt và Tản nhiệt: Bể Onsen 40-42°C cần công nghệ giữ nhiệt Heat Pump (Bơm nhiệt) và hệ thống bọc bảo ôn đường ống chuyên dụng. Nếu không, tiền điện hàng tháng sẽ “ăn mòn” lợi nhuận của bạn một cách thầm lặng.

c. Sai lầm 3: Thảm họa Giao thông (Traffic Flow) – Sự cố tế nhị và lúng túng
Trong khu vực Onsen, khách hàng khỏa thân 100%. Thiết kế phải giải quyết triệt để vấn đề tâm lý nhạy cảm này.
-
Phân luồng chéo (Cross-traffic): Để khách đang mặc đồ “va” vào khách đang khỏa thân là lỗi chết người về trải nghiệm.
-
Khu vực đệm (Buffer Zone): Thiếu khu vực đệm để lau khô người giữa khu Ướt (Onsen) và khu Khô (Jjimjilbang) khiến sàn nhà luôn ẩm ướt, trơn trượt và mất vệ sinh.
-
Quy trình 1 chiều: Thiết kế phải dẫn dắt khách hàng theo lộ trình logic, bắt buộc khách phải tắm tráng trước khi xuống bể Onsen.
d. Sai lầm 4: Ác mộng Hệ thống MEP (Cơ Điện) – Trái tim yếu ớt trong cơ thể khổng lồ
Đầu tư vào MEP cho Onsen & Jjimjilbang chính là đầu tư vào tuổi thọ và chất lượng dịch vụ.
-
Hệ thống sưởi sàn Jjimjilbang: Nếu dùng vật liệu kém, hỏng hóc đồng nghĩa với việc đục phá toàn bộ sàn nhà để sửa chữa, gây gián đoạn kinh doanh.
-
Thông gió và Cấp khí tươi (Fresh Air): Phòng xông phải có hệ thống cấp khí tươi chính xác, nếu thiếu Oxy, khách hàng sẽ cảm thấy ngột ngạt, khó thở, thậm chí ngất xỉu. Đây là rủi ro an toàn không thể chấp nhận.
-
Chống thấm: Cần công nghệ chống thấm chuyên dụng cho môi trường áp suất hơi nước nóng và nhiệt độ cao, nếu không hơi nước sẽ thấm ngược, phá hủy kết cấu.

e. Sai lầm 5: Vật liệu sai mục đích – Sự ăn mòn của nhiệt và muối
Môi trường Jjimjilbang & Onsen là “kẻ hủy diệt” vật liệu thông thường.
-
Ăn mòn: Hơi muối từ phòng xông đá muối sẽ ăn mòn kim loại nhanh chóng. Gỗ thông thường sẽ bị nấm mốc và cong vênh do hơi nước nóng.
-
Giãn nở nhiệt: Keo dán gạch, vữa thông thường sẽ bị bong tróc liên tục do sự giãn nở nhiệt không ngừng (Thermal Shock) của nước nóng.
- Gỗ phòng xông hơi: Nhiều chủ đầu tư ham rẻ chọn gỗ không chuyên dụng và mỏng, không có rãnh chống co ngót, chỉ 1 thời gian vận hành đã co ngót, hỏng hóc.
g. Sai lầm 6: Lỗ hổng Cách nhiệt Phòng Xông – Thảm họa Năng lượng
Đây là lỗi thiết kế “vô hình” của onsen & jjimjilbang nhưng gây thiệt hại tài chính lớn nhất trong dài hạn, thường xảy ra khi CĐT chọn nhà thầu không chuyên về phòng xông hơi.
-
Không cách nhiệt: Nhiều nhà thầu “bỏ quên” hệ thống cách nhiệt chuyên dụng như phun foam trên mái trần, hoặc sử dụng xốp bạc/bông khoáng mật độ cao cho vách và sàn.
-
Hậu quả tài chính: Việc thiếu cách nhiệt khiến nhiệt độ thất thoát ra môi trường bên ngoài. Máy sưởi Sauna heater hoặc hệ thống sưởi sàn phải làm việc liên tục 24/7 để bù đắp, dẫn đến:
-
Tiêu hao điện năng khủng khiếp, đẩy chi phí vận hành (OPEX) lên mức không tưởng.
-
Nhiệt độ thất thoát làm không gian bên ngoài phòng xông (hành lang, khu nghỉ) nóng bức bất thường, ảnh hưởng trải nghiệm khách hàng.
-
-
Cảnh báo: Vật liệu cách nhiệt không chỉ là cách nhiệt mà còn là rào cản hơi nước (Vapor Barrier), ngăn hơi nước nóng xâm nhập và phá hủy kết cấu tường.
h. Sai lầm 7: Bỏ quên Hậu cần (Back of House) – Nỗi khổ của vận hành
Chủ đầu tư chỉ tập trung vào sảnh đón tiếp mà quên đi “bộ xương” quản lý phía sau.
-
Kho vải (Linen): Onsen & Jjimjilbang tiêu tốn lượng khăn và đồ pijama khổng lồ. Thiếu kho chứa, thiếu lối đi riêng cho xe đẩy đồ bẩn sẽ khiến khu vực đón khách luôn bừa bộn, làm giảm giá trị thương hiệu.
-
Phòng kỹ thuật: Nén ép máy bơm, máy gia nhiệt vào góc nhỏ hẹp khiến thiết bị dễ hỏng hóc, giảm tuổi thọ và gây tiếng ồn lớn.
k. Sai lầm 8: Vướng mắc Pháp lý PCCC – Án tử của Giấy phép
Onsen và Jjimjilbang là cơ sở kinh doanh công cộng tập trung đông người, sử dụng nhiệt độ cao, nước và điện năng lớn, nên yêu cầu về Phòng cháy Chữa cháy (PCCC) cực kỳ nghiêm ngặt, khác xa so với các công trình dân dụng thông thường.
-
Thiết kế sai quy chuẩn: Nhiều Chủ đầu tư thuê công ty thiết kế kiến trúc, nội thất không có chuyên môn sâu về mô hình Spa/Wellness, dẫn đến bản vẽ không đáp ứng các tiêu chuẩn về lối thoát hiểm, mật độ người, hệ thống báo cháy, và đặc biệt là hệ thống điện/cơ trong môi trường ẩm ướt.
-
Hậu quả pháp lý: Thiết kế bị cơ quan chức năng từ chối phê duyệt cấp phép PCCC. Điều này không chỉ làm mất thời gian quý báu, lỡ kế hoạch kinh doanh dự tính, mà còn phải hao tổn tài chính để thuê đơn vị thiết kế chuyên môn làm lại từ đầu. Thậm chí, không thể khai trương nếu không có giấy phép.

l. Sai lầm 9: Thiếu Tầm nhìn Tổng thể – Đổ vỡ Tài chính
Đây là sai lầm mang tính chiến lược và tài chính. Dự án sụp đổ không phải vì không có khách, mà vì hết tiền trước khi kịp thu hồi vốn.
-
Tính toán chi phí sai lệch: Đơn vị tư vấn không có kinh nghiệm sâu thường chỉ tính toán chi phí xây dựng cơ bản (CAPEX) mà bỏ qua hoặc ước lượng sai chi phí lắp đặt hệ thống MEP chuyên biệt, chi phí xử lý nước Onsen, và chi phí vận hành hàng tháng (OPEX) khổng lồ do máy móc chạy liên tục (như đã đề cập ở Sai lầm 7). Phát sinh do tính toán sai từ đơn vị tư vấn thiết kế không có chuyên môn khiến các nhà thầu thi công không thể thực hiện được, nếu vẫn cố thi công phải điều chỉnh lại bản vẽ cả hệ thống khiến dự án phát sinh thêm rất nhiều chi phí. Nhiều chủ đầu tư đã phải dừng lại vì chi phí phát sinh vượt qua chi phí dự tính ban đầu.
-
Hậu quả: Khi đi vào vận hành, CĐT mới “vỡ lẽ” rằng tiền điện, tiền bảo trì quá cao, dẫn đến tổng mức đầu tư thực tế vượt quá ngân sách ban đầu, mô hình kinh doanh không đạt được điểm hòa vốn như dự kiến, làm đổ vỡ toàn bộ dự án.
Quý khách hàng có thêm thao khảo video những sai lầm khi thiết kế, thi công Onsen & Jjimjilbang tại đây
3. GIẢI PHÁP TOÀN DIỆN: Kovitech – Người Kiến Tạo & Bảo Vệ Dự Án Của Bạn
Nếu thị trường đầy rẫy những cạm bẫy kỹ thuật, thì Kovitech là đơn vị tiên phong giải quyết triệt để những vấn đề trên. Lựa chọn Kovitech là lựa chọn an toàn cho sự thành công và ổn định dài hạn của dự án.
a. Vai trò “Kiến trúc sư trưởng” về Công nghệ (Master of Technology)
Kovitech sở hữu công nghệ xử lý nước Onsen chuyên dụng, loại bỏ hoàn toàn rủi ro sử dụng công nghệ hồ bơi. Công nghệ sưởi sàn và hệ thống thông gió của Kovitech đảm bảo nhiệt độ chuẩn xác, tiết kiệm năng lượng và độ bền lên đến hàng chục năm, loại bỏ nỗi lo phải đục phá sửa chữa.
b. Tư vấn Vận hành từ giai đoạn “Trứng nước”
Kovitech tư vấn luồng giao thông khoa học ngay từ bản vẽ 2D, đảm bảo sự riêng tư của khách hàng và tối ưu hóa quy trình làm việc của nhân viên. Điều này giúp Chủ đầu tư tránh được sự lúng túng trong vận hành và tối đa hóa hiệu suất sử dụng không gian.
d. Tổng thầu “Chìa khóa trao tay” (Turnkey Solution)
Kovitech đồng bộ hóa toàn bộ quy trình từ Thiết kế, Thi công, đến Lắp đặt thiết bị MEP và Xử lý nước. Việc làm việc với một đầu mối duy nhất giúp loại bỏ tình trạng “đổ lỗi” giữa các nhà thầu phụ, đảm bảo kiểm soát chất lượng vật liệu chuyên dụng và cam kết tiến độ.
e. Bảo chứng cho sự Thành công
Với hồ sơ năng lực dày dặn qua hàng loạt dự án Onsen và Jjimjilbang lớn tại Việt Nam, Kovitech là đối tác bảo chứng cho chất lượng và độ bền bỉ của dự án. Chủ đầu tư không chỉ mua thiết bị, mà mua sự yên tâm về dịch vụ bảo trì, bảo dưỡng và hỗ trợ kỹ thuật sau khi đi vào hoạt động.
4. Lời kết và bài học chủ đầu tư cần ghi nhớ.
Đầu tư vào Onsen & Jjimjilbang là cuộc chơi của Công nghệ và Quy trình, không phải là cuộc chơi của trang trí. Những sai lầm về kết cấu, MEP và Cách nhiệt sẽ biến ước mơ kinh doanh của bạn thành gánh nặng chi phí vận hành không đáy.
Dựa trên kinh nghiệm thực chiến và để tránh những rủi ro đã được cảnh báo, dưới đây là Lời khuyên thực chiến cuối cùng dành cho mọi Chủ đầu tư:
- Thuê Đơn vị Tư vấn Vận hành từ Sớm: Hãy thuê đơn vị tư vấn vận hành tham gia ngay từ giai đoạn thiết kế bản vẽ (Design Phase). Họ sẽ giúp kiểm soát luồng giao thông (Traffic Flow) và công năng để không gian bạn xây lên không chỉ đẹp mà còn hoạt động hiệu quả.
-
Đừng Tiếc Tiền cho Kỹ thuật: Đừng cắt giảm chi phí cho hệ thống MEP và xử lý nước. Đây không phải là chi phí mà là tài sản đầu tư. Đó chính là “cỗ máy in tiền” của bạn, quyết định tuổi thọ và chất lượng dịch vụ cốt lõi.
-
Kiểm tra Chất lượng Bền vững: Yêu cầu tham quan các dự án thực tế mà đơn vị thiết kế/thi công đã làm sau 2 năm vận hành. Đây là cách duy nhất để thấy rõ chất lượng thật sự của vật liệu và hệ thống kỹ thuật trong môi trường khắc nghiệt.
Để tránh những “tử huyệt” đã được cảnh báo, hãy tìm đến đối tác có kinh nghiệm thực chiến và năng lực công nghệ vượt trội. Lựa chọn Kovitech ngay từ giai đoạn thiết kế là quyết định sáng suốt nhất để bảo vệ nguồn vốn và đảm bảo lợi nhuận bền vững cho dự án Wellness của bạn.





